FespaC |FespaM | FespaR
Tutorial
- Ολοκληρώνεται η περιγραφή της ανωδομής.
- Στην κάρτα «Πεδιλοδοκοί» των παραμέτρων των «Παραγωγών» εισάγονται οι επιθυμητές τιμές διαστάσεων της πεδιλοδοκού h, hf, bw, beff.
- Εντολή «Παραγωγή εσχάρας θεμελίωσης» και επιλογή του ορόφου του οποίου η συνδεσμολογία θα αντιγραφεί στη θεμελίωση. Έτσι, στον όροφο θεμελίωσης παράγονται πεδιλοδοκοί, αντικαθιστώντας οτιδήποτε υπήρχε σε αυτόν.
- Μετάβαση στον όροφο της θεμελίωσης και ενεργοποίηση του διαφανούς του μοντέλου [Μ] για να εμφανίζονται οι κόμβοι ίχνους των υποστυλωμάτων.
- Εντολή «Προσθήκη» του Πεδίλου και διαδοχικά κλικ στα ίχνη των υποστυλωμάτων που θεμελιώνονται με πέδιλο.
- Αλλαγή του είδους των επιθυμητών δοκών από πεδιλοδοκούς σε συνδετήριες, με χρήση των εντολών «Πάρε/Δώσε παραμέτρους» της Δοκού.
- Επίλυση και οπλισμός του κτιρίου. Αν το πλάτος έδρασης των πεδιλοδοκών είναι ανεπαρκές, το πρόγραμμα θα εμφανίσει μήνυμα σφάλματος για υπέρβαση φέρουσας ικανότητας εδάφους ή ειδοποίηση για υπέρβαση τάσεων.
Προσοχή
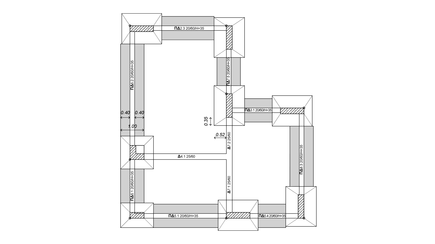
Οι δοκοί μέσα στoν πόδα των τοιχωμάτων θα πρέπει να είναι δεσμικές (όπως οι αντίστοιχες της ανωδομής) αλλά με είδος και διατομή πεδιλοδοκού.
Παρατήρηση
Για την εκτίμηση του πλάτους έδρασης της πεδιλοδοκού μπορούν να χρησιμοποιηθούν οι διαστάσεις των πεδίλων που παρήχθησαν από το πρόγραμμα για αυτά τα υποστυλώματα. Πριν διαγραφούν τα πέδιλα αθροίζονται τα εμβαδά τους. Αν Foλ το συνολικό άθροισμα των επιφανειών τους, τότε το πλάτος έδρασης της πεδιλοδοκού θα είναι: B= Foλ/L, όπου L το μήκος της πεδιλοδοκού.