FespaC
Tutorial
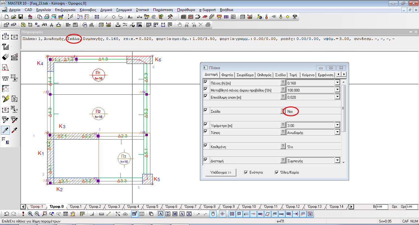
Κατά την εισαγωγή των πλακών της σκάλας Π1 και Π2 θέστε «Ναι» στην παράμετρο «Πλάκα > Διατομή > Σκάλα».
Μετά την «Προσαρμογή δοκών» (εντολή των “Παραγωγών”) οι πλάκες για τις οποίες έχετε θέσει «Σκάλα=Ναι» συνδέονται ως αμφιέρειστες στις μικρές πλευρές.