Το FespaM λειτουργεί ως αυτόνομο πρόγραμμα υπολογισμού κτιρίων από δομικό χάλυβα
Το πρόγραμμα Fespa παρέχει την δυνατότητα ανάλυσης και διαστασιολόγησης μεταλλικών ή σύμμεικτων κατασκευών από χάλυβα και σκυρόδεμα. Το Fespa Μεταλλικά μπορεί να λειτουργήσει και ως αυτόνομο πρόγραμμα (Stand Alone) χωρίς να είναι απαραίτητη η αγορά του Fespa Σκυρόδεμα.
Το περιβάλλον εισαγωγής και επεξεργασίας στοιχείων από σκυρόδεμα ή χάλυβα είναι ενιαίο, το ίδιο και η διαστασιολόγηση, ενώ η παρουσίαση των αποτελεσμάτων γίνεται στο ίδιο τεύχος. Ο μεταλλικός φορέας υπολογίζεται μαζί με την θεμελίωση, η οποία μπορεί να υλοποιείται με πέδιλα, πεδιλοδοκούς, συνδετήριες, ενώ υπάρχει και η δυνατότητα συνεργασίας με το πρόγραμμα επιφανειακών πεπερασμένων στοιχείων fepla.
Νέο είδος μέλους – Λεπτότοιχες τεγίδες
- Για τεγίδες και μηκίδες μπορούν να χρησιμοποιηθούν και λεπτότοιχες διατομές ψυχρής έλασης μορφής C και Ζ. Επιλέγεται διακριτό είδος μέλους και κατάλληλη κατηγορία χάλυβα.
- Στις διαθέσιμες κατηγορίες μεταλλικών πρότυπων διατομών προστίθενται οι διατομές UPE
Αυτόματος υπολογισμός φορτίων ανέμου και χιονιού
- Δυνατότητα αυτόματης παραγωγής φορτίων ανέμου σε πολλαπλές διευθύνσεις.
Αυτόματη διαίρεση της κατασκευής σε κατακόρυφες και οριζόντιες ζώνες σύμφωνα με τον Ευρωκώδικα 1.
Υποστηρίζονται επίπεδες, μονοκλινείς και δικλινείς στέγες.
Υπολογισμός ανεμοπίεσης για κάθε ζώνη βάσει της κλίσης της στέγης και του πλάτους επιρροής κάθε μέλους.
- Δυνατότητα αυτόματης παραγωγής φορτίων χιονιού σύμφωνα με τον Ευρωκώδικα 1 για επίπεδες και πολυκλινείς στέγες, με αυτόματο υπολογισμό του πλάτους επιρροής και της κλίσης.
Νέα στο πρόγραμμα υπολογισμού συνδέσεων μεταλλικών μελών.
- Νέα σύνδεση διαγώνιου μέλους με δοκό (για συνδέσμους V ή Λ).
- Χρήση κοιλοδοκών CHS, SHS, RHS στις συνδέσεις διαγωνίου.
Νέα σύνδεση διαγώνιου συνδέσμου με δοκό μέσω κομβοελάσματος (εφαρμογή στην περίπτωση συνδέσμων V ή Λ)
Αναπτύγματα οπλισμών για όλες τις δοκούς του ορόφου
Με τη νέα εντολή «Αναπτύγματα οπλισμών όλων των δοκών του ορόφου» δημιουργείται ξεχωριστό αρχείο, στο οποίο περιέχονται οι διαμήκεις τομές όλων των δοκών του ορόφου με τους οπλισμούς τους σε ανάπτυγμα. Υπάρχει η δυνατότητα στοίχισης των επιμέρους αναπτυγμάτων και καθορισμού των μεταξύ τους αποστάσεων για διευκόλυνση της εκτύπωσής τους σε διαφορετικά μεγέθη χαρτιού.
Στο ανάπτυγμα της δοκού περιλαμβάνονται εγκάρσιες τομές όπου παρουσιάζεται η θέση και το πλήθος των ράβδων, δείκτες ράβδων στις διαμήκεις τομές, περασιές καννάβων κλπ.
Προσθήκη νέων παραμέτρων σχετικών με την εμφάνιση των αναπτυγμάτων (δυνατότητα επιλογής εμφάνισης ή όχι αναπτυγμάτων ράβδων οπλισμού, συντελεστής κλιμάκωσης διατομής δοκού, κτλ.).
Βελτιωμένο τεύχος μελέτης
Οι αλλαγές/βελτιώσεις που έγιναν στο Τεύχος αποτελεσμάτων κατά την ενσωμάτωση των Ινδικών κανονισμών στο στατικό πρόγραμμα Fespa ενσωματώνονται και στους Ευρωκώδικες!
- Αναλυτικά αποτελέσματα υποστυλωμάτων στο Τεύχος. Διαγράμματα ροπών και τεμνουσών του μέλους καθώς και αναλυτική παρουσίαση του ελέγχου της διατομής (τάσεις και δυνάμεις χάλυβα και σκυροδέματος, κτλ.)
- Φάσμα σχεδιασμού, τέμνουσα βάσης και κριτήρια κανονικότητας (έλεγχος μεταβολής δυσκαμψίας) καθ’ ύψος στους “Γενικούς ελέγχους δομήματος”.
- Σκαριφήματα κατόψεων ορόφων με ονόματα μελών και κόμβων.
- Προστέθηκε πίνακας με τον έλεγχο επιρροής των ανώτερων ιδιομορφών σύμφωνα με την §5.7.2 του ΚΑΝΕΠΕ (προϋπόθεση εφαρμογής ανάλυσης Pushover).
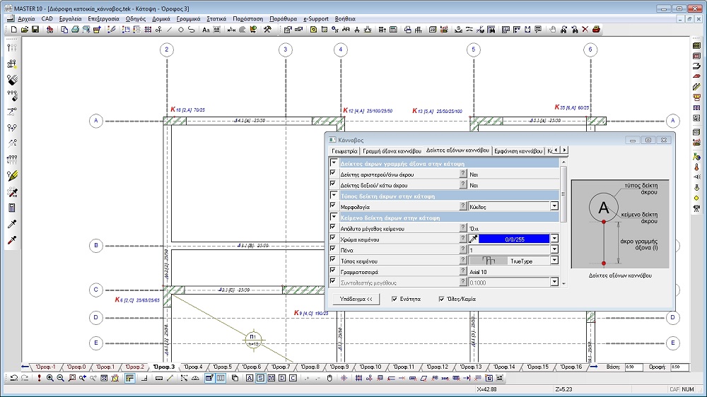
Νέα οντότητα Κάνναβος για τη χάραξη της οικοδομής
Αυτόματη απόδοση θέσεων οντοτήτων
Το Fespa εφοδιάζεται με την νέα “έξυπνη” και “ενεργή” οντότητα Καννάβου η οποία αποδίδει αυτόματα σε όλες τις οντότητες τη θέση τους (υποστυλώματα, δοκούς,κλπ), στα σχέδια κατόψεων και στα σχέδια τομών.
Με την νέα οντότητα κάνναβου μπορείτε να δημιουργήσετε έναν τοπικού χαρακτήρα κατασκευαστικό/ στατικό κάνναβο επί παραγγελία. Τα επιμέρους στοιχεία του καννάβου μπορούν να επεξεργαστούν μέσα από τα παράθυρα διαλόγου των παραμέτρων.
Κατεβάστε το Fespa & Tekton 26!
Έχετε ενεργή συντήρηση; Κατεβάστε τη νέα έκδοση και αξιοποιήστε άμεσα τις τελευταίες δυνατότητες των προγραμμάτων.
- Πιο ευέλικτη 3D μοντελοποίηση
- Έξυπνες μαζικές αλλαγές
- Πλήρης εποπτεία μοντέλου
Ανακαλύψτε το Tekton26
Το Tekton26 ενισχύει το Synthesis for Tekton και τα Tags, προσφέροντας περισσότερη ευελιξία στη 3D σύνθεση και στη μορφοποίηση των σχεδίων.
- Ταχύτερη 3D μοντελοποίηση
- Έξυπνες μαζικές αλλαγές
- Ευέλικτη μορφοποίηση σχεδίων
Διατηρήστε το πρόγραμμά σας ενημερωμένο
Με ενεργή συντήρηση έχετε πρόσβαση στην τελευταία έκδοση Fespa & Tekton και στις νέες δυνατότητες που καλύπτονται από τη συντήρηση του λογισμικού σας.
- Πάντα στην τελευταία έκδοση
- Άμεση τεχνική υποστήριξη
- Έκπτωση σε νέες δυνατότητες